Après une première phase réceptionnée en mai 2023, les travaux de la seconde phase du réaménagement des espaces publics du centre-bourg se sont terminés fin novembre 2024.

Cette phase finalise le travail mené pour rendre le centre-bourg plus agréable avec les mêmes objectifs de bien-vivre ensemble et de desserte des équipements sécurisée pour tous. Les derniers aménagements ont été réalisés sur le dernier trimestre 2025.

Cette page est dédiée à vous présenter le périmètre et les finalités de ce projet. Son contenu a été actualisé le 25 novembre 2025.

Retour sur la phase 1

La première tranche du réaménagement des espaces publics du centre bourg a été réceptionnée le 26 mai 2023 après un an de travaux qui ont suivi la destruction du Mille-Club.
Depuis, les différentes aires ont été successivement mises en service. L’ensemble a été baptisé « Place Saint-Laurent ».

Nous constatons leur fréquentation avec la praticité, l’harmonie et la quiétude recherchées pour notre village au quotidien pour tous ses usagers.

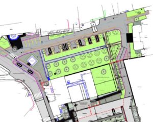
> La mise au vert des parkings

2 nouveaux espaces de stationnement se substituent désormais à l’ancienne zone bitumée dont les usages étaient multiples et mal délimités :

  • un premier parking pour les usages quotidiens. Bitumé, il se situe à proximité du périscolaire (bâtiment de l’ex-médiathèque) avec 12 places dont 1 pour les personnes à mobilité réduite (PMR) ;
  • un second parking pour les usages d’appoint ou plus événementiels (par exemple : entrée/sortie d’école, manifestations dans la commune). Avec un revêtement alvéolé et végétalisé, ces 30 places sont arborées. Il constitue une continuité végétale renforcée entre notre forêt et la place de l’église.

Cette nouvelle place Saint-Laurent est desservie par une nouvelle voie longeant le cimetière depuis la rue de Franould.

> Des liaisons douces et sécurisées entre les équipements publics

Des cheminements piétons permettent de rejoindre les différents équipements municipaux, comme par exemple se rendre de l’accueil périscolaire à l’aire de jeux :

  • des petits murets les protègent des véhicules circulant sur les parkings, équipés d’une couvertine pour s’y asseoir et profiter du cadre champêtre ;
  • le segment de trottoir étroit le long de la place en haut de la rue de Pont a été supprimé et végétalisé au profit de cette promenade parallèle aux rues et protégée ;
  • les 2 passages piétons de la rue de Pont sont dans leur prolongement, assurant la liaison avec l’école élémentaire et le restaurant scolaire, avec une « silhouette » pour attirer la vigilance routière ;

Un meilleur équilibre entre les moyens de transport qui facilite les modes de déplacements doux :

  • le centre du village est basculé en zone 30, du parking rue de la Poirie face à l l’école élémentaire jusqu’aux services techniques et depuis la mairie et de l’église en venant de Pont ;
  • le carrefour des routes départementales a été redessiné avec un rétrécissement de la largeur de la chaussée respectant les minimums réglementaires pour permettre d’être fréquenté avec attention par les plus gros véhicules motorisés (grumier par exemple). Il clarifie les accès aux terrains privés ;
  • le stationnement des vélos est assuré à proximité immédiate du périscolaire et son parvis retravaillé.
  • un nouveau quai de bus aux normes est aussi mieux intégré avec plus d’accessibilité (lignes Fluo dont les dessertes vers les établissements scolaires de niveau secondaire).

> Des lieux de rencontre intergénérationnels

L’esplanade redessinée repositionne les zones sportives et ludiques pour plus de plaisir à les fréquenter. Ils sont dotés de mobilier urbain complémentaires pour plus de convivialité (banc, table…) :

  • l’aire de jeux pour les enfants déplacée parallèlement à la rue de Pont est donc mieux desservie et à proximité des établissements publics et des commerces ;
  • le terrain de pétanque repositionné à proximité profite des aménagements paysagers.

Phase 2 : le réagencement de la place de l’église

Inscrite sur le budget communal 2024 et objet d’un marché public, la seconde phase s’est focalisée sur la place de l’église en la raccordant à l’esplanade et aux parkings créés en phase 1.
L’accent est mis sur la mobilité douce pour plus de quiétude.
Par cohérence, elle reprend les « codes » esthétiques principaux de la phase 1 comme par exemple le dessin pavé des parvis des bâtiments ou le modèle d’éclairage, tout en réexploitant les aménagements les plus récents ou le maximum de matériaux démontés.

Les échanges avec les bureaux d’études Intensité et Ingerop qui nous accompagnent dans la maîtrise d’œuvre ont permis de dimensionner les travaux pour les rendre acceptable financièrement.

De plus, certains travaux ont été réalisés en régie par les agents du service technique municipal, comme les démolitions préparatoires de murs réalisées au printemps 2024.

> Une place redessinée

En un espace partagé avec les piétons et cyclistes, les véhicules motorisés peuvent accéder à la place de l’église avec une entrée en sens unique s’effectuant par devant la mairie. L’actuel originel au pied de la maison des associations a été condamné et verdi.

  • La sortie se fait rue de Franould par la nouvelle voie créée le long du cimetière et prolongée au cours de la phase 2 (seule la desserte des 2 nouveaux parkings est à double-sens depuis la rue de Franould) ;
  • L’accès à la place par le côté gauche de l’église est réservé aux piétons et vélos. L’église se trouve ainsi dans un écrin de verdure grâce à des aménagements paysagers.

Le cœur de la place est ainsi dédié exclusivement aux piétons comme lieu de promenade et de rencontre au quotidien. Il continue à accueillir des événements comme des kermesses, petits marchés ou concerts.

La place gagne en attractivité tout en valorisant notre patrimoine paysager.

Le nouveau parvis de la mairie offre plus de sécurité et est un lieu privilégié pour les différents événements comme les cérémonies patriotiques ou les mariages civils.

> Le stationnement

Globalement le projet ne fait pas perdre de places de stationnement ! 23 places au total dont 2 PMR. Elles sont repositionnées selon les besoins ;

  • le long de la zone piétone compensent les emplacements supprimés sur l’espace central ;
  • elles sont complétées par quelques places entre le parvis de la mairie et l’espace culturel (hors PMR) pour fréquenter la mairie (agence postale communale, accueil, rendez-vous) ;
  • le raccordement aux 2 nouveaux parkings compléte la disponibilité pour fréquenter le centre-bourg (église, espace culturel, bar-restaurants, commerces…) ;
  • n’oublions pas les places disponibles à l’arrière de la mairie au pied de l’espace culturel ;
  • enfin du stationnement cyclable à proximité de la mairie et de l’espace culturel.

> Les aménagements connexes

L’espace derrière le bâtiment périscolaire est consacré à un nouveau jardin pour le service périscolaire afin que les enfants le fréquentant bénéficient d’une plus grande surface d’activités extérieures.

La clôture idoine a été posée par nos agents du service technique en avril 2025.

> La station fitness pour les jeunes dès 14 ans

En contrebas de la pelouse de l’Espace culturel, une aire équipée d’agrès de sport extérieurs est implantée et en service depuis novembre 2025.
Favorisant la pratique d’une activité physique saine et stimulant les interactions sociales, cet équipement est destiné aux jeunes dès 14 ans en quête d’un lieu convivial de rencontre.
Les adultes désireux d’entretenir eux-aussi leur forme (amélioration des capacités cardiovasculaires et respiratoires, développement musculaire, gain en agilité, souplesse et coordination) y ont également bien sûr accès.

 

Cette zone est complétée d’une table de tennis de table.

Cette installation finalise ainsi le projet de réaménagement des espaces publics du centre bourg contribuant à renforcer le lien social entre toutes les générations picosées, à l’instar des autres équipements en service depuis 2023.